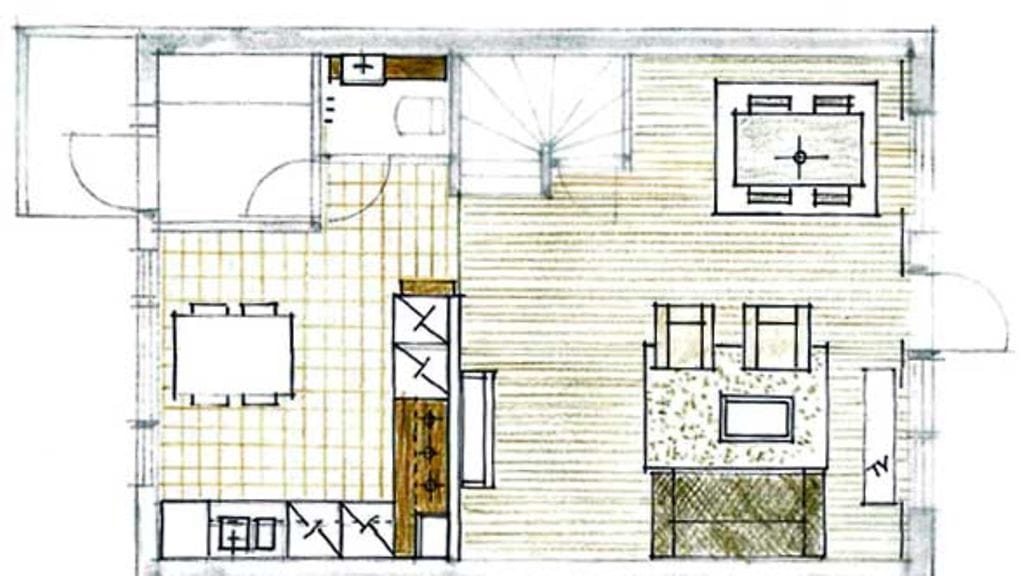
Kohteemme on 98 m2:n paritalo kahdessa kerroksessa. Olohuoneesta on kaunis näkymä pihalle, joka avautuu etelään päin. Keittiöstä näkyy mm. leikkipuisto. Toisessa kerroksessa on kolme makuuhuonetta ja sauna. Talo on kaiken kaikkiaan erinomainen perheasunto. Asunto on hyvässä kunnossa ja siististi sisustettu, eikä se kaipaa suurta remonttia. Kuitenkaan se ei ole mennyt kaupaksi, joten haluan keventää olohuoneen ilmettä ja tehdä pienen piristyksen keittiöön ja wc:hen.

Olohuoneen kalustus uusitaan ja huonekalut ryhmitetään uudella tavalla. Sieltä poistetaan työpöytä ja kirjahylly. Työpöydän tilalle tulee takka! Käytän ns. valetakkaa, missä palaa oikea tuli. Sitä on helppo ja nopea käyttää ja sen tulipesä myös lämmittää. Tämä takka on turvallinen ja se on helppo asettaa, hormia kun ei tarvita. Sohvaryhmän entiselle paikalle tuon yksinkertaisen ja tyylikkään sohvan, myös tv-taso uusitaan. Sohvan yläpuolelle seinälle asetetaan iso tapettipaneeli, joka sointuu hyvin sohvan väriin. Olohuoneeseen saadaan mahtumaan myös ruokailuryhmä ikkunan viereen. Siinä on mukava istua perheen ja ystävien kanssa hyvää ruokaa nauttimassa. Olohuoneen sohva on Kuusilinnan ja muut kalusteet Iskusta, valetakka Sisustustakasta, verhot ovat Vallila Interiors Stockmann ja myös muut koristelutarvikkeet ovat Stockmannilta. Valkoinen matto on Verson Itu villamatto.
Keittiössä on paljon valkoisia pintoja, liiankin paljon, sen ilme on hieman väritön. Muuttamalla työtaso ja valaisimet saadaan jo paljon aikaiseksi. Työtasoksi tulee kaunis puutaso Ikeasta ja sen yläpuolelle kohdevalot (Massive). Poistin myös koristelistan yläkaappien alareunasta, jotta työskentelytila on korkeampi. Kaapeista löytyi paljon Marimekon tarvikkeita, jota käytin koristeluun verhojen kaveriksi.

WC:ssä oli kuuden kaakelin ryhmä altaan yläpuolella. Ne poistetaan ja tilalle laitetaan pieniruutuisella valkoisella kaakelilla laatoitettu seinä, puutason ja yläkaapin väliin (K-rauta Lanterna). Lisäksi sinne asennetaan paksu puutaso (Ikea) ja uusi, tason päällä lepäävä allas (Ido). Wc:stä tulee näin raikkaampi ja puutaso antaa sinne lämpöä. Kaikki putket kulkevat seinän pinnalla näkyvissä ja ne ovat kiiltävän kromattuja. Haluan korostaa tätä "teräslookia" laittamalla sinne teräksiset pyyhekoukut ja paperirullateline. Lisäväriä wc:hen antavat punaiset pyyheliinat ja matto Stockmannilta.
Yläkerran huoneet ovat kaikki kauniisti sisustettuja, varsinkin Roosan huone on sievä kuin prinsessan kammari. Yläkerrassa en näe syytä muuttaa mitään, se on tyylikäs sellaisenaan. Ainoastaan vanhempien makuhuoneeseen lisäsin väriä muutamalla tyynyllä (Stockmann).
Erityisesti haluaisin antaa kiitoksen isäntäväelle ja Kultasuklaalle makeasta lisästä sisustukseen!
