Ihana retro-mummolafiilis! Kohteen tunnelma lyö kasvoilleni voimakkaasti. Syy on ehkä siinä, ettei itselläni ole koskaan ollut mummolaa ja aina olen sitä kuitenkin toivonut…
Asunnon ilma on raikas, vaikka materiaalit ja tekstiilit ovat selvästi iäkkäitä. Sisään tulvii auringonpaiste suurista ikkunoista. Huoneet ovat suuria ja tilaratkaisultaan asunto tuntuu avaralta. Suuri, lasitettu parveke on urheilukenttien suuntaan.
Seinissä on kauniita, ajalle ominaisia tapetteja ja maalisävyjä. Talo on rakennettu 1970-luvun lopulla. Alkuinnostukseni metsänvihreää seinäväriä kohtaan muuttuu pikkuhiljaa järjen sanelemana päätökseksi maalauttaa kaikki seinä- ja kattopinnat raikkaanvalkoisiksi Tikkurilan puolihimmeällä, sävyttämättömällä sisämaalilla. Myös vihreä kylpyhuone ja wc ansaitsevat saman kohtalon.

Molemmissa makuuhuoneissa on muovimatto. Haluan ehdottomasti niihin asennettavan nykyisen parketin sävyisen laminaatin (hintakysymys). Parketin kunto mietityttää. Rakennusurakoitsijan kanssa pohdimme vaihtoehtoja, ja koska mielestäni parketin hiominen ja käsittely vaatii myös kauniiden massiivipuu-väliovien samankaltaisen käsittelyn, jätän työn suunnitelmani ulkopuolelle budjettiin vedoten.
Kustannusarvio kaikkien seinien ja kattojen maalaukselle (alustavine töineen) sekä kahden makuuhuoneen lattioiden laminaattien asennukselle on yhteensä 4.600 euroa. Näin ollen 5.000 euron budjettiin ei paljon muuta mahdukaan…
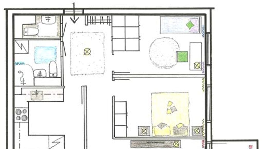
Keittiön kaapistot vaatisivat uusimisen. Rungotkin ovat jo paikka paikoin korjaamattomassa kunnossa. Nyt on siis tehtävä päätös, sijoitanko annetun budjetin keittiöön vai pintojen maalausurakkaan. Valitsen pinnat ja jätän keittiön lähes alkuperäiseen kuntoon. Keittiön ja ruokailutilan välistä päätän kuitenkin purkaa avohyllykön avaran tilantunnun lisäämiseksi. Keittiön seinälle saan budjetin puitteissa hankittua vielä kaksi hyllyä eheyttämään kokonaisuutta. Kaikkiin asunnon kaappeihin ja komeroihin vaihdetaan nykyaikaisemmat vetimet päivittämään tilannetta.
Ikkunat ja parvekelasitus pestään. Liikenteen pöly on takertunut ikävästi jo vuoden tyhjillään olleen asunnon ikkunoihin. Antaa kevätauringon tulvia sisälle! Parveke kalustetaan Iskusta lainatuilla puisilla puutarhakalusteilla ja somistetaan iloisenvärisellä matolla, kevätkukkasilla ja lyhdyillä.
Sisustus tehdään lähinnä lainahuonekaluilla. Sisustusvärit löydän seinillä olevista, kauniista ryijyistä. Mielestäni vahvat, iloiset värit sopivat piristämään asunnon uutta raikasta ilmettä. Ruokailuryhmäksi lainataan Iskun uutuusryhmä Hetki, joka sopii tyyliin muotoilun ja voimakkaan värityksen vuoksi. Ryhmä kootaan rohkeasti turkoosin Caramel-maton avulla.

Olohuoneeseen lainataan Iskusta pinkki Audio Max -sohva ja kaksi Hilda-lepotuolia; valkoinen ja metsänvihreä. Oleskeluryhmä kootaan pehmeällä, luonnonvalkoisella Caramel-matolla. Pitkät, suorat pihlajanlehti-verhot siirretään makuuhuoneesta olohuoneeseen ja niiden lisäksi verhokiskoon ripustetaan puhtaanvalkoiset verhot raikastamaan kokonaisvaikutelmaa. Olohuoneen säilytyskalusteiksi sopivat Iskun Hetki-sarjan lipastot.
Valkoisiksi maalatut kylpyhuone ja wc somistetaan raikkaasti vaaleansinisin tekstiilein.
Suurempaan makuuhuoneeseen lainataan parisänky, joka pedataan lämpimän keltaisen sävyillä. Ruokailutilan pitkät, kullankeltaiset verhot siirretään ikkunaan. Vuoteen päätyyn, seinälle ripustetaan keltaisen sävyinen sisustustaulu ja lattialle luonnonvalkoinen, pehmeä matto. Sängyn viereen lainataan yöpöytä ja sen päälle asetetaan valaisin. Samaa sarjaa oleva valaisin ripustetaan kattoon.
Pienempi makuuhuone kalustetaan Iskun valkoisella Space-lastensängyllä ja omistajan valko-vihreällä kirjoituspöydällä. Huone sisustetaan raikkaaksi vihreillä ja violeteilla tekstiileillä; verhot, vihreä Caramel-matto Iskusta, vuodevaatteet, jne. Seinälle valitaan sisustustauluja samoissa sävyissä.
Tässä kohteessa ei tarvitse kiinnittää erityistä huomiota valaistukseen, koska suuria ikkunoita on paljon ja myyntiaika sijoittuu kevääseen/kesään.
Tällä stailauksella, jossa seinäpinnat hehkuvat raikkaanvalkoisina ja sisustus iloisesti puhtaissa väreissä, toivoisin asunnon löytävän uudeksi asukkaaksi nuorekkaan ja sporttisen perheen!
