Sisustuksen suunnittelijana Marianne Sundell
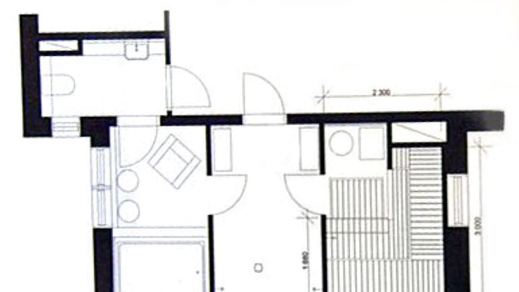
T.i.l.a -ohjelman muutoskohteet ovat yleensä projekteja, missä olemassa olevaa tilaa sisustetaan tai remontoidaan laajemmin. Kuitenkin suunnittelijat työssään tekevät myös projekteja, jossa suunnitellaan uudiskohteita. Tässä hankkeessa on tehty jo alustavat arkkitehtisuunnitelmat ja osa rakenteellisista kuormista on laskettu, joten ainoastaan kahdella ulkoseinustalla voidaan siirtää vielä yläikkunoiden sijaintia vaikuttamatta itse rakennuksen ulkojulkisivuun. Samoin wc:n sijainti on sovitettu paikalleen, mutta varsinainen 23 neliömetriä oleva tila, eli suihku-, kylpy- ja saunaosasto on vaille jäsentelyä.
Suunniteltu hormi määrittelee luonnollisesti saunan paikan, sillä suunnitelmassa toivottaisiin saunaan puukiuasta. Ensimmäinen luonnoskuva pyrki jäsentelemään saunan siten, että sinne mahtuisi myös sähkökiuas. Sauna mitoitettiin kuudelle hengelle. Saunaan kaivattiin leveää makuulaudetta ja suihkuhuoneeseen toivottiin suorakulmion muotoista ammetta, eikä perinteistä kaarevaa kulmamallia. Amme sijoitettiin ensimmäisessä suunnitelmassa ikkunan alle nurkkaukseen ja sen vireen muodostettiin tilan pienelle wc:lle. Suihkulle jäi väljä tila, jonne sovitettiin kaksi penkkiä saunan seinää vasten. Tämä suunnitelma herätti keskustelun siitä, tuleeko ammeen olla samassa tilassa kuin muut suihkut. Perheen äiti kaipasi rauhallista kylpyhuonetta, jossa ei vilistäisi koko perhe samanaikaisesti. Isä puolestaan piti ajatuksesta, jossa kaikki olisivat yhdessä isossa tilassa. Saunasta oltiin samaa mieltä, se tuntui heti mieleiseltä.

Tietynlainen symmetrisyys, jota alun perin oli haettu saunaan, innoitti toisessa suunnitelmassa sijoittamaan erillisen suihkutilan symmetrisesti pukuhuoneen oveen nähden. Saunan ja kylpyhuoneen ovet sijoitettiin vastakkain. Poreamme sijoitettiin kylpyhuoneen takaseinämälle ja toinen puoli huoneesta jäi lepotilaksi ja kulkuväyläksi kohti wc:tä, jonne avattiin uusi ovi-aukko seinälinjaan. Tämän suunnitelman etuna on, että huoneilman kosteus pysyy pienempänä ja esimerkiksi kylpyhuonetta on helpompi ja tunnelmallisempi käyttää erikseen kun se on mittakaavansa puolesta pienempi.
Suunnitelmaa lähdettiin toteuttamaan jälkimmäisen ehdotuksen pohjalta. Tilan tunnelmasta haluttiin pehmeä maan ja kiven sävyjä mukaileva. Koska suunnitelmaan muodostui monta erillistä tilaa, päätettiin että laatat ja käytetyt koristekivet olisivat yhtenäisiä, jotta muodostuisi yhtenäinen tunnelma koko suunnitellulle alueelle. Väriteemaksi valittiin beigen, ruskea ja harmaan yhdistelmä.

Wc:tä käytetään myös pukuhuoneen kautta, mutta silti kylpyhuoneen ovien materiaaliksi valittiin kirkas lasi. Wc-istuin on sijoitettu pitkän ja kapean huoneen taka-osaan. Käsienpesuallas sijoitettiin laatoitetulle tasolle ja sen ylle kiinnitettiin koko seinämän levyinen peili. Peilin ylle rakennettiin massiivipuusta lista, jonne upotettiin led-valaisimia luomaan iltakäyttöä varten hämyisää yleisvaloa. Seinäpinnat tasoitettiin struktuuriltaan pyörteisesti ja pinta maalattiin hiekkaisella efektimaalilla. Wc-istuimeksi valittiin seinä-wc, jotta siivous olisi helpompaa. Wc-istuimen takaseinämä laatoitettiin suklaan sävyisellä ruskealla laatalla, joka vaihtuu hyllytason jälkeen beigen ja ruskean sävyiseksi koristekiveksi. Hyllylle saa kauniisti esille koriste-esineitä kuten myös ruskealla laatalla laatoitetulle leveälle tasolle. Lapsia varten tason alle hankittiin askeltaso, jotta he voivat omatoimisesti käyttää pesuallasta, joka on modernin hanan ansiosta hyvin veistoksellinen kokonaisuus.
Kylpyhuoneessa toistuvat samat värit kuin wc-tilassakin. Amme on upotettu osaksi puukantta, jonka sivustoja reunustavat kahdella seinustalla koristekivi ja yhdellä seinustalla ruskean sävyinen laatta. Koristekiviseinämä on valaistu alhaalta valokuitujen avulla, ja yleisvalo on himmentimien takana. Valon määrää säätämällä saadaan tunnelmasta hyvin pehmeä ja lämminhenkinen. Luonnonvalo siivilöityy pähkinäpuisen sälekaihtimien läpi, muuttaen luonnonvalon sävyn lämpimän beigeksi. Pähkinäpuun käyttö innoitti rottinkikalusteiden syvään ruskean paahtuneeseen sävyyn. Nojatuolin takana seinustalla on kuivausteline, jossa kylpijän pyyhe odottaa miellyttävän lämpöisenä.

Ammeen puuosat on vahattu myös pähkinän sävyiseksi. Leveä askelma toimii lasten istumapaikkana ja kynttilöiden laskupaikkana. Maljat ovat parafiiniä, joten ne ovat turvallisia siinä mielessä että ne eivät rikkoonnu sirpaleiksi. Ammeen etulevy on kiinnitetty neljällä ruuvilla, joten ammeen alle on helppo katsoa, samoin askelma kätkee taakseen tuuletusritilät, jotta ammeenpohja pääsee tuulettumaan. Ammeen alla on lattiakaivo, jonne huoneen vedet ohjautuvat, joten etulevy ja askelmat ovat pienillä jaloilla. Ikkunaseinä on laatoitettu beigen sävyisellä laatalla, ja ikkunan alaosaan on kiinnitetty leveä hylly, joka toimii hyvänä laskutasona. Poreammeessa on monipuoliset hierovien suuttimien toiminnot ja voimavirrankäyttö, jonka ansiosta vesi pysyy halutun lämpöisenä eikä jäähdy. Rentouttavaa kylpynautintoa tehostamaan huoneeseen hankittiin kaiuttimet, jotka ovat osa kodin Bose-musiikkijärjestelmää. Kaiuttimet sijoitettiin kylpyhuoneen lisäksi suihkuhuoneeseen.
Suihkuhuoneeseen luotiin viileämpi tunnelma, jotta huoneella olisi virkistävä vaikutus. Harmaa laattalattia, joka polveilee kautta koko osaston, on nyt myös seinälaattana. Pukuhuoneen ovea vastapäätä on katseenvangitsijaksi rakennettu harmaasta koristekivestä seinämä, johon on upotettu kaksi lasihyllyä. Suihkutangot ovat tavallisesta poiketen hyvin pitkät, jotta hierovia suuttimia sisältävä sadettaja-suihku voidaan asettaa vaikka hieromaan ristiselkää. Pukuhuoneen oven molemmin puolin on istuinpenkit, joiden alle saatiin tarvittavaa säilytystilaa. Toisella seinustalla on lasiovelliset kaapit, jonne saatiin sijoitettua sähkökiukaan ohjauspaneeli ja saunanvalokuitujen projektori. Suihkuhuoneen yleisvaloa saadaan säädettyä myös himmentimien avulla. Pienen lisänsä tuo kaksi valokuitua, jotka antavat pientä valoa toisen penkin seinustalle. Tässä usein perhe pitää tarjotinta saunajuomiaan varten.

Saunan ovi on kylpyhuoneen ovea vastapäätä. Saunaan mahtuu isommallakin porukalla saunomaan ja pienempien vesipaljut voidaan täyttää saunan puolella olevasta hanasta, joka on asennettu sen verran matalalle että sekoittaja ei kuumene liikaa. Hanaan voidaan liittää myös pikaliittimellä suihkuletku helpottamaan saunan pesua. Heti oven vasemmalle puolelle muodostuu yhdessä hormin kanssa syvennys, jonne saatiin sijoitetuttua molemmat kiukaat. Puukiuasta varten saunaan järjestettiin raitisilmaventtiili, jotta saunan happitasapaino suhteessa kosteuteen säilyy hyvänä. Suunnitelmassa otettiin huomioon valmistajan määrittelemät turvaetäisyydet. Puukiukaan vierustaa jatkettiin muuratulla seinärakenteella, joka laatoitettiin kuten myös hormi- ja osa kiukaiden taustaseinästä. Samassa linjassa rakennettiin kaide, johon saa asetettu jalat ns. istuma lauteelta, jonka syvyys on 60 cm. Laude tekee pienen kulman hormin suuntaisesti, joten siihen muodostui luonnollinen paikka vesikiululle. Toisella seinustalla laudeleveys on 90 cm, joten siinä mahtuu makaamaan miellyttävästi.
Hämyisä valaistus on tehty valokuitujen avulla. Molempien kiukaiden yllä on höyrylinssit. Lähellä kiukaiden takaseinää on kaksi kuituvaloa, jotka on suunnattu valaisemaan saunan koristekiviseinämää. Yksi isompi linssi antaa parempaa yleisvaloa ensimmäisen askelman yllä. Kun sähkökiuas on käytössä, askelman saa vedettyä isommaksi, ja kun turvaväliä vaaditaan enemmän käytettäessä puukiuasta, askelman voi työntää syvemmälle toisen laudetason alle. Lauteet ovat lämpökäsiteltyä haapaa ja seinä- ja kattopaneelit tervaleppää. Lauteen pyöreät ja leveät etuprofiililaudat ovat tuijaa. Kaikki puulajit ovat sävyltään kauniin paahtuneita. Pellavaiset laudeliinat jatkavat mustien kiukaiden väriskaalaa ja niiden avulla sauna saatiin huiliteltua lopulliseen ilmeeseensä.
Tuotetiedot
- Lasiovet ja peili:
- kromi-pintainen 180 asteinen saranointi, karkaistu 8 mm lasi, metalli nuppivetimellä
- 5 mm peili liimattiin peililiimalla wc:n seinään
- Jälleenmyynti: Lasistamo Helsinki Oy, Helsinki 09-780017, www.lasistamo.fi, info@lasistamo.fi
- Katkaisijat:
- ELKO Plus-sarjan katkaisijat, sävy: hopea
- Yleisvalojen ristikytkentä himmentimet ja ammeen virta- ja tunnelmavalokytkin on asennettu ns. kuivantilan puolelle / wc.
- Tiedustelut: Elko Suomi Oy, Espoo 09-4393210, www.elko.fi
- Jälleenmyynti: Sähköurakoitsijat kautta maanantai
- Valaistus:
- Wc:n peilin yllä oleva valaisin Celery Led- valaisin 6 kpl
- Tiedustelut: Massive Finland Oy, Vantaa 09-8676336, info@massive.fi
- Jälleenmyynti: Valaisin ja rautakaupat kautta maan
- Halogeenivalo IP44, satiinilasikuvulliset halogeenivalaisimet wc:n, kylpyhuoneen ja suihkuhuoneen katossa
- Tiedustelut: hlight@highlight.fi
- Jälleenmyynti: Highlight, Helsinki 09-2411734
- Saunassa ja poreammeen ympärillä on erilliset valokuitusarjat ja projektorit. Saunan sarjassa yksi linsseistä luo enemmän yleisvaloa ja kaksi ovat höyrylinssejä kiukaiden yllä.
- Tiedustelut: Cariitti Oy, Kirkkonummi 09-2219040, www.cariitti.com
- Jälleenmyynti: Valaisin ja rautakaupat kautta maan
- Kalusteet:
- Ruskean sävyinen rottinkituoli sis. valkoinen istuintyyny ja 2 kpl rahi / istuin
- Jälleenmyynti: Vepsäläinen, Espoo 09-8553020, www.vepsalainen.com
- Grundal lasihyllyt suihkuhuoneen koristekivi seinämässä
- Suihkuhuoneen istuin penkkien kaapit: Vättern-kaappi Lonen-ovilla ja kaappien runkoihin rakennettiin itse kansi ja jalkarakenteet massiiviliimapuulevystä / Khaya-mahonki
- Jälleenmyynti: IKEA-asiakaspalvelu, 09-34829400
- Poreammeen kotelointi, hylly ja askelma, sekä ja rakennettiin myös massiiviliimapuulevystä / Khaya-mahonki, joka käsiteltiin OsmoColorin pähkinän sävyisellä puuvahalla.
(T.i.l.a. 17.10.2007)
ja
